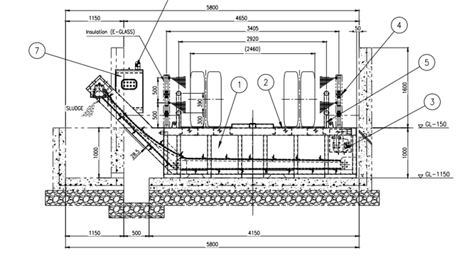
Truck washing System
- 형 식: Grating 8-Roll Type, Scraper Drive, Water Pump
- 규 격: W2,200 x L 5,340 x H2,047, 최대폭 2,800mm
- 용 량: 1대당 3 Liter, 보충용수 1대당 2 ~ 6L 보충수
- 부속설비: Photo Sensor
- 상세사양은 Operation & Maintenance Manual 참고
발생현상
- 세륜장 Pit 용수 부족으로 인한 Water Washing 불량
- Photo Sensor 감지 불량으로 오동작 발생
- Sludge Scraper 이물질 인한 동작 불량
발생원인
- 세륜 Pit 용수부족 및 이물질로 인한 Washing Pump 흡입불량
- 포토센서 오염으로 인한 오동작 발생
- Sludge Scraper 기동시 돌, 자갈, 기타 이물질등으로 동작불량
조치방법
- 세륜장 Pit 용수 보충후 Truck Water Washing Pump 기동 실시
- Pit 약 90% 용수 보충후 Service Water V/V 필히 Close, Over Flow시 Sump Pump 넘어가 수위가 높을 경우 Pump 2대 연속 기동 되므로 주의 필요함
- 세륜장 차량 인식 근접센서 경우 센서 부근 오염물로 인한 오동작 발생시 Sensor Cleaning 실시
- Sensor Cleaning 인식 불량 및 오동작 발생할 경우 Local 전환하여 점검요청 필요함, 이외 근접 센서 (적외선) 인식 거리가 1m 이상에도 감지하므로 주변 차량 정차시 계속 Water Washing 분사 되므로 주변구간 차량 주차 금지
- 세륜장 Pit 경우 Truck Washing시 모래, 자갈, 흙, 기타 이물질 등이 씻겨나가 Pit Scraper가 Sludge Pit로 밀어낼 때 Scraper 이물질 끼어 동작불량 발생시 해당 부근 간섭 이물질 제거 실시
- 세륜장 Pit 및 Sludge Pit 경우 Sludge 어느정도 찼을 경우 준설작업 요청
점검중 주의사항
- 겨울철 동결 방지를 위한 세륜장 출차 부근 열선 동작 상태 점검
- 모든 작업은 CCR 보고 후 PFW (안전작업허가) 승인 이후 작업 가능함
