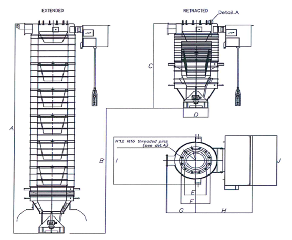
Fly, Bottom Ash System
- 용 량: Fly Ash (500ton, Φ 9,500mm*19.08mH), Bottom Ash (300ton, Φ6,200mm*12.96mH)
- 부대설비: Telescopic Chute, Dust Collector, Air Blower, Vibrator
- 상세사양은 Operation & Maintenance Manual 참고
발생현상
- Telescopic Chute Wire Pulley Shaft 고정 Bolt 탈락
- Fly Ash 고착으로 배출 불량
- Root Blower 구동 V-Belt 손상 및 Aeration Pan Nozzle 막힘
- Bottom Ahs Silo 하부 Vibrator 기동 불량 및 Cable 손상
발생원인
- Telescopic Chute Filter 오염 및 교체 주기 도래
- Telescopic Chute Wire 불균형으로 Up/Down 조작 시 한쪽으로 부하 가중, Pulley Shaft 고정 Bolt 손상 및 탈락
- Fly Ash 고착으로 Shut-off V/V, Slio 하부 목 부분 Ash 고착 덩어리 막힘
- Root Blower V-Belt 장기간 기동으로 고무 경화 및 Crack, 절손
- Bottom Ash Silo Vibrator Cable 손상으로 기동 불량
조치방법
- Fly Ash 배출 차량 상차 시 발생하는 분진 포집하는 장치로 오염 및 교체 주기도래 발생 시 Telescopic Chute 상부 Filter 8개 교체 실시
- 교체작업 시 현장 Local Control Panel 해당 설비 CB 격리 → Manual V/V Close → 하부측 Boosting Air, Pulsing Air Close
- Telescopic Chute Wire Rope 꼬인 부분 해체 후 Pulley 재정렬 이후 Chute 하강후 고정 Shaft 고정 Bolt 체결
- Fly, Bottom Ash 공통사항 배출 차량 상차시 충진 슈트 상승, 하강 시 Rope Sheave Shaft Bolt 탈락은 대부분 충진슈트 하강시 Rope 좌/우 균형이 맞지않거나 상승시 Sheave Rope가 풀려 밖으로 넘어가 꼬이는 현상 발생, 정비 작업 후 T/L Chute Up, Down Test Wire Rope 좌/우 균형 확인이 필요, 맞지 않다면 재조정 실시
- Fly Ash 고착으로 배출 불량(지연) 및 문제 발생 시 Shut-off V/V 점검구 Open하여 고착 및 막힘 상태 확인후 필요시 Air Gun 이용하여 해소 작업실시, 해소 작업 시 덩어리 Ash 들이 배출 차량 유입 방지를 위한 차량 충진 맨홀(hatch) 구간 Mesh망 설치하여 유입된 고착 Ash들을 제거한다. 이후 배출이 원활하지 않거나 해소 작업이 어려운 경우 정비팀 지원요청
- Ash 해소 작업시 Silo Shut-off 하부 측 해소 작업 시 Manual V/V Close, Silo 상부측 목 부분 배출구 해소 작업 시 Manual V/V 30~50% 이내 조정 후 작업실시, 해소과정에서 순간 Ash가 쏟아지는 것을 방지, 현장 상황과 여건에 따라 추가 조정이 가능함, 또한 해소과정에서 차량 기사와 소통 부재로 인한 인적 실수로 인한 사고 예방을 위해 조작 컨 트롤 리모컨은 현장 운전원이 직접 조작한다. 작업 과정에서 배출 차량 기사 조작 금지
- Fly, Bottom Ash 공통 Telescopic Chute 전원 공급 및 구동 설비가 문제가 없으나 동작이 안되는 경우 T/L Chute Up, Down Limit S/W 점검 필수
점검중 주의사항
- 배출 불량으로 고착 Ash 해소 작업 시 안전 보호구 착용 필수
- 차단기 Trip 발생 시 현장 점검 후 설비 Trouble 발생시 TM발행, 이외 현장 점검이후 문제가 없을 경우 CCR 보고후 차단기 인입 요청 협력업체 차단기 조작 권한이 없으므로 문제 발생시 임의로 조작금지
- 모든 작업은 CCR 파트장보고 후 PFW (안전작업허가) 승인 이후 작업 가능함 설비 문제 발생 시 현장 운전원은 육안검점, 원인파악, 문제해결 위한 해당 설비 Local 조작 (Inching 운전, 정역회전, 밸브조작 등) 가능
