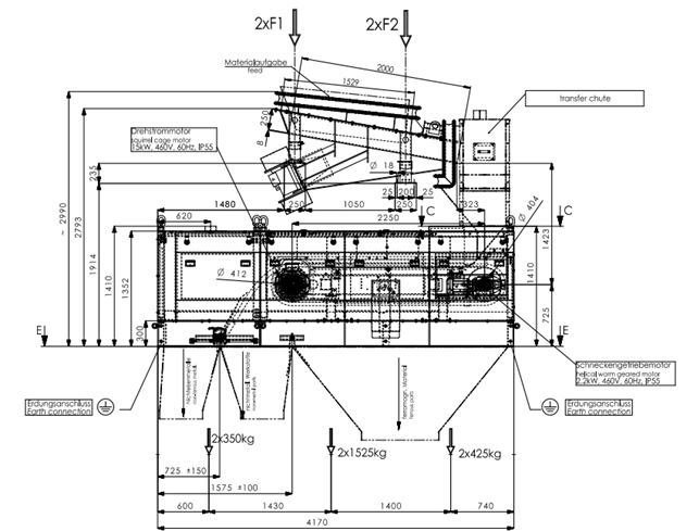
Vibrating Feeder & EDDY Current Separator
설비제원
- 형 식: Belt Type, Drum, Vibrating Feeder
- 용 량: 46ton/h
- 안전장치: Speed S/W, E-Stop S/W, Sway(Alignment) S/W
- 상세사양은 Operation & Maintenance Manual 참고
발생현상
- Vibrating Feeder 출구 Chute 막힘 현상
- Belt Revolution Fault
발생원인
- 연료 이송량 과다로 인한 정체 및 고착 현상 발생
- 연료 이송이 Belt 전체적으로 분포 되지 않으며, 한쪽으로 편중되어 Belt의 사행 발생
조치방법
- Transfer Chute 점검구 Opne 후 고착물 제거
- 고착물 제거 작업은 전용 Tool을 이용하여 진행
- Local Panel에서 Local 전환 후 Test Mode 기동하여 Belt 내 연료 이송 후 무부하 기동하여 Belt 사행 조정
- 무부하 기동간 기타 특이사항 유무 점검 (Sensor 이상 / Belt, Drum 이상 등)
- 무부하 기동으로 Belt 사행 조정 불가시 C.C.R 보고 / 정비 지원 요청
점검중 주의사항
- LCS Local 전환 후 Test Mode 기동
- 기동중 안전 거리 확보 필요
- 모든 작업은 CCR 보고 후 PFW (안전작업허가) 승인 이후 작업 가능함
